contacter
  • Locaux commerciaux - Location - CHATEAUDUN - 28200 - 1075-1075 - 7612444
  • Locaux commerciaux - Location - CHATEAUDUN - 28200 - 1075-1075 - 7612445
  • Locaux commerciaux - Location - CHATEAUDUN - 28200 - 1075-1075 - 7589333
  • Locaux commerciaux - Location - CHATEAUDUN - 28200 - 1075-1075 - 7612444
  • Locaux commerciaux - Location - CHATEAUDUN - 28200 - 1075-1075 - 7612445
  • Locaux commerciaux - Location - CHATEAUDUN - 28200 - 1075-1075 - 7589333

Local commercial à louer à CHATEAUDUN 28200

CHATEAUDUN 28200 – Obtenir l'adresse exacte
Référence : 3506

Description


À LOUER — LOCAL COMMERCIAL — SAINT-DENIS-LANNERAY
Agglomération de Châteaudun

Situé au cœur de la zone commerciale de Saint-Denis-Lanneray, au sein du Grand Châteaundun, ce local bénéficie d’une excellente visibilité depuis l’axe principal (environ 9 000 véhicules/jour).

Caractéristiques du local :

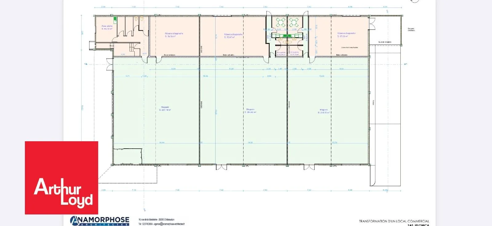
- Surface totale : 1075 m² de plain-pied
- Quai de dechargement P-L
- Livré brut – aménagement à prévoir par le preneur
- Mode de chauffage: aérothermes à gaz
- Hauteur sous plafond : environ 3 m
- Parking commun : 89 places
- Environnement commercial attractif : Leclerc, Aldi, Basic Fit, Chope et Compagnie…
- Activités autorisées : restauration possible
- Activités interdites : solderie, bazar, vente au détail de fruits/légumes/alcool, boucherie, boulangerie

Conditions financières :

- Loyer : 90Euros HT/m² soit 96.840Euros Hors Taxes par an
- Charges : 2% du loyer annuel HT, les consommations aux réels
- Taxes foncières : 12 Euros/m²/an, soit 12.912Euros
- Honoraires d’agence : 20 % du loyer annuel HT
- Frais de rédaction du bail : 2 000 Euros HT à la charge du preneur

Disponibilité :Juin 2026

Pour plus d’informations ou organiser une visite, n’hésitez pas à nous contacter.

Loyer mensuel, hors taxes, hors charges : 8 070 Euros HT/HC/mois
Honoraires hors taxes (à la charge du preneur) : 20 % du loyer annuel hors taxes hors charges. Frais de bail en sus.
Montant estimé des dépenses annuelles d'énergie pour un usage standard : non communiqué.

Demander plus d'informations au conseiller

Localisation dans le secteur Chateaudun

Programmer une visite dès maintenant ?

Contactez-moi afin d'obtenir les informations concernant ce bien et/ou programmer une visite

Recherche plus d'offres dans ce secteur ?

Les informations sur les risques auxquels ce bien est exposé sont disponibles sur le site Géorisques.

DPE & GES

Diagnostic de performance énergétique
Diagnostics DPE en cours de réalisation
Indice d'émission de gaz à effet de serre
Diagnostics GES en cours de réalisation

Vous cherchez des biens en Location dans le secteur Chateaudun

En soumettant ce formulaire, j'accepte que les informations saisies soient exploitées dans le cadre de ma demande et de la relation commerciale qui peut en découler.
Nous utilisons des cookies et autres traceurs pour analyser et améliorer votre expérience utilisateur, réaliser des statistiques de mesure d’audience et vous permettre de lire des vidéos. Vous pouvez à tout moment modifier vos paramètres de cookies en cliquant sur le bouton « Personnaliser ». En cliquant sur le bouton « Tout accepter », vous acceptez le dépôt de l’ensemble des cookies. Dans le cas où vous cliquez sur « Personnaliser » et refusez les cookies proposés, seuls les cookies techniques nécessaires au bon fonctionnement du site seront déposés. Pour plus d’informations, vous pouvez consulter la page « Charte de données personnelles ».