contacter
  • A LOUER - PROJET NEUF - IDEAL ARTISAN
  • A LOUER - PROJET NEUF - IDEAL ARTISAN
  • A LOUER - PROJET NEUF - IDEAL ARTISAN
  • A LOUER - PROJET NEUF - IDEAL ARTISAN
  • A LOUER - PROJET NEUF - IDEAL ARTISAN
  • A LOUER - PROJET NEUF - IDEAL ARTISAN
  • A LOUER - PROJET NEUF - IDEAL ARTISAN
  • A LOUER - PROJET NEUF - IDEAL ARTISAN

A LOUER - PROJET NEUF - IDEAL ARTISAN

GRAND COURONNE 76530 – Obtenir l'adresse exacte
Référence : 1367229-0L

Description

A LOUER - PROJET NEUF - IDEAL ARTISAN

Demander plus d'informations au conseiller

Localisation dans le secteur Austreberthe

Programmer une visite dès maintenant ?

Contactez-moi afin d'obtenir les informations concernant ce bien et/ou programmer une visite

Recherche plus d'offres dans ce secteur ?

Les informations sur les risques auxquels ce bien est exposé sont disponibles sur le site Géorisques.

Accès au local d'activité & entrepôt dans le secteur Austreberthe

Autoroute Au Sud Ouest de l'agglomération rouennaise avec accès direct vers l'A13 en direction de Paris, Le Havre, Caen
SNCF Gare SNCF Rive Droite de Rouen à 15 min vers Paris et TGV Lyon - Marseille
Bus Ligne de bus : 6, 107, 315, 39, 88

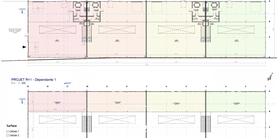
Tableau des surfaces

Étage Type Surface Loyer
RDC Stock. Activités 263 m² Indisponible
RDC+ Bureaux 126 m² Indisponible
RDC+ Bureaux 125 m² Indisponible
RDC+ Bureaux 125 m² Indisponible
RDC Stock. Activités 260 m² Indisponible
RDC Stock. Activités 260 m² Indisponible
RDC+ Activités 124 m² Indisponible
RDC Stock. Activités 257 m² Indisponible
Total Cellule Lot 4 Activités 389 m² 94,60 € m²/an HT HC
Total Cellule LOT 3 Activités 385 m² 94,61 € m²/an HT HC
Total Cellule LOT 2 Activités 385 m² 94,61 € m²/an HT HC
Total Cellule LOT 1 Activités 381 m² 94,65 € m²/an HT HC
Surface totale : 1 540 m²

Tableau des surfaces

12 lots de 381m² à 1540m² disponibles

Prestations

  • A Grand Couronne, un projet neuf créant un parc d'activité proposant plusieurs cellules à la location avec les aménagements et finitions suivantes :

  • Stockage d'environ 260 m2 :

  • Dalle béton quartzé

  • hauteur 7 m et 4 m sous mezzanine

  • Skydome avec trappes de désenfumages

  • Puissance électrique en tarif bleu / 36 Kva

  • Porte sectionnelle électrique

  • Porte piéton

  • Bureaux d'envrion 125 m2 :

  • Au RDC une Salle de pause aménagé :

  • Cuisine : plaque de cuisson, frigo, ...

  • Sanitaire

  • Fenêtre en double vitrage

  • Sol en dalle béton quartzé

  • En mezzanine bureaux livrée paysagé (plafonds style industriel avec luminaires, radiateurs électriques, courant fort / faible)

  • Surface extérieur :

  • Places de parkings en facades

  • Stockage extérieur et privatif pour le LOT 1 d'environ 219 m2)

  • Bornes de recharge, à consommation individuelle (carte chargemap)

  • Ossature : Métallique

  • Murs périmétriques : Panneau sandwich isolant

  • Couverture : Panneaux sandwich isolants

Vous avez des questions sur ce bien ?

DPE & GES

Diagnostic de performance énergétique
Diagnostics DPE en cours de réalisation
Indice d'émission de gaz à effet de serre
Diagnostics GES en cours de réalisation

Vous cherchez des biens en Location dans le secteur Austreberthe

En soumettant ce formulaire, j'accepte que les informations saisies soient exploitées dans le cadre de ma demande et de la relation commerciale qui peut en découler.
Nous utilisons des cookies et autres traceurs pour analyser et améliorer votre expérience utilisateur, réaliser des statistiques de mesure d’audience et vous permettre de lire des vidéos. Vous pouvez à tout moment modifier vos paramètres de cookies en cliquant sur le bouton « Personnaliser ». En cliquant sur le bouton « Tout accepter », vous acceptez le dépôt de l’ensemble des cookies. Dans le cas où vous cliquez sur « Personnaliser » et refusez les cookies proposés, seuls les cookies techniques nécessaires au bon fonctionnement du site seront déposés. Pour plus d’informations, vous pouvez consulter la page « Charte de données personnelles ».