contacter
  • Terrain nu viabilisé de 1260m² à louer bord de départementale à Salon de Provence
  • Terrain nu viabilisé de 1260m² à louer bord de départementale à Salon de Provence
  • Terrain nu viabilisé de 1260m² à louer bord de départementale à Salon de Provence
  • Terrain nu viabilisé de 1260m² à louer bord de départementale à Salon de Provence

Terrain nu viabilisé de 1260m² à louer bord de départementale à Salon de Provence

SALON DE PROVENCE 13300 – Obtenir l'adresse exacte
Référence : 1412489-0L

Description

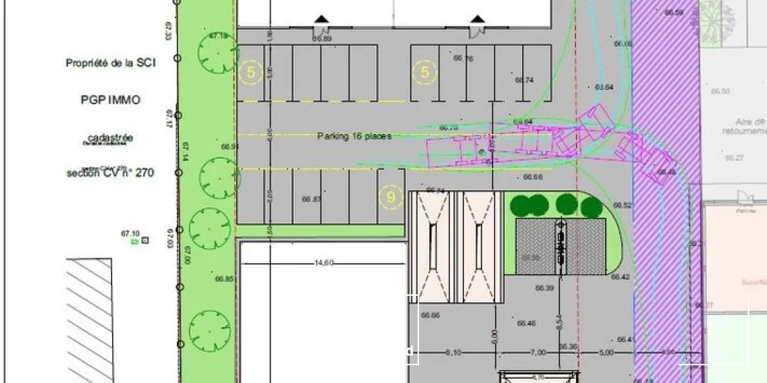
ARTHUR LOYD FIGUIERE IMMOBILIER vous propose à la location un terrain nu de 1260m², viabilisé, au sein d'un nouveau programme commercial. Possibilité d'un bail à construction pour un local de 440m² maximum (lot 1 sur plan).
Situés sur la D538 à Salon de Provence, emplacement premium avec très bonne visibilité et flux véhicules jour important.
Disponibilité : début 2027.
Activité autorisée : automobile, équipement de la maison. Attention pas de surface de vente.Les informations sur les risques auxquels ce bien est exposé sont disponibles sur le site Géorisques http://www.georisques.gouv.fr

Demander plus d'informations au conseiller

Localisation dans le secteur Salon de Provence

Programmer une visite dès maintenant ?

Contactez-moi afin d'obtenir les informations concernant ce bien et/ou programmer une visite

Recherche plus d'offres dans ce secteur ?

Les informations sur les risques auxquels ce bien est exposé sont disponibles sur le site Géorisques.

Accès au terrain dans le secteur Salon de Provence

Autoroute A 54 et A7 à proximité
Amp Marseille Provence à 40 mins
SNCF Salon (SNCF)
SNCF Aix en Provence TGV à 35 mins
SNCF Avignon TGV à 40 mins
Bus Lignes 3 et 12

Tableau des surfaces

Étage Type Surface Loyer
RDC Terrain 1 260 m² 17,00 € HT/HC/m²/an
Surface totale : 1 260 m²

Tableau des surfaces

1 lot de 1260m² disponibles

Prestations

  • Terrain de 1260m² nu

  • viabilisé (pluviales, eau, tout à l'égout , fourreaux électriques, gaine Telecom

  • possibilité de bail à construction pour un local de 440m² maximum

  • Emplacement n° 1 - bord de nationale

  • Surface RDC : 1260 m²

Vous avez des questions sur ce bien ?

DPE & GES

Diagnostic de performance énergétique
Diagnostics DPE en cours de réalisation
Indice d'émission de gaz à effet de serre
Diagnostics GES en cours de réalisation

Vous cherchez des biens en Location dans le secteur Salon de Provence

En soumettant ce formulaire, j'accepte que les informations saisies soient exploitées dans le cadre de ma demande et de la relation commerciale qui peut en découler.
Nous utilisons des cookies et autres traceurs pour analyser et améliorer votre expérience utilisateur, réaliser des statistiques de mesure d’audience et vous permettre de lire des vidéos. Vous pouvez à tout moment modifier vos paramètres de cookies en cliquant sur le bouton « Personnaliser ». En cliquant sur le bouton « Tout accepter », vous acceptez le dépôt de l’ensemble des cookies. Dans le cas où vous cliquez sur « Personnaliser » et refusez les cookies proposés, seuls les cookies techniques nécessaires au bon fonctionnement du site seront déposés. Pour plus d’informations, vous pouvez consulter la page « Charte de données personnelles ».