contacter
  • LOCAL COMMERCIAL à LOUER de 650 m²
  • LOCAL COMMERCIAL à LOUER de 650 m²

LOCAL COMMERCIAL à LOUER de 650 m²

HAGUENAU 67500 – Obtenir l'adresse exacte
Référence : 67.0378

Description

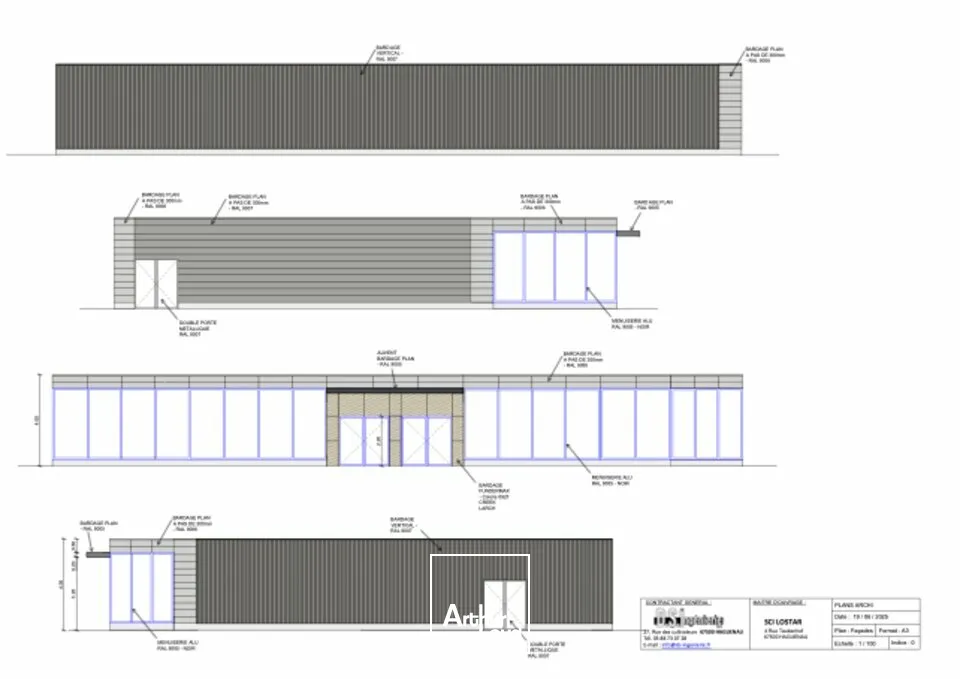
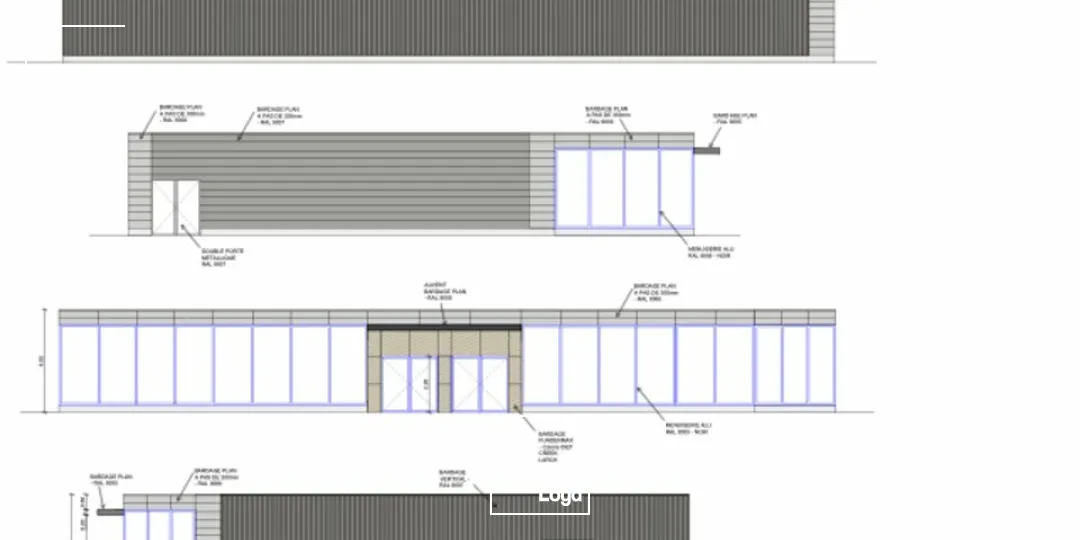
Arthur Loyd Alsace vous présente à la location un Local commercial de 650m² environ divisible en deux lots de 320 m2 situé au sein de la Zone Commerciale du Taubenhof au nord de la commune de Haguenau. Le bâtiment est tout à fait adapté pour accueillir une activité de restauration ou de commerce. Un parking privatif est situé à l'avant du local pour recevoir la clientèle.

Le local sera livré remis à neuf avec le remplacement des menuiseries et portes, de l'intégralité du bardage, une remise en état de la dalle ainsi qu'une mise en peinture complète de l'intérieur

Le bien sera livré Brut fluide et électricité en attente pour 2 cellules de 320 M2 chacune, ou un local de 650 m2,

Par ailleurs la Zone Commerciale du Taubenhof est composée de plusieurs enseignes qualitatives générant un flux de passage régulier avec notamment : Cora, Botanic, Norauto, King-jouet, Decathlon... etc

Arthur Loyd Alsace est à votre disposition pour vous transmettre toutes les informations techniques, juridiques et financières concernant ce local.

Contactez-nous au 03.67.34.16.00 pour organiser une visite

Les informations sur les risques auxquels ce bien est exposé sont disponibles sur le site Géorisques : www.georisques.gouv.fr

Demander plus d'informations au conseiller

Localisation dans le secteur Haguenau

Programmer une visite dès maintenant ?

Contactez-moi afin d'obtenir les informations concernant ce bien et/ou programmer une visite

Recherche plus d'offres dans ce secteur ?

Les informations sur les risques auxquels ce bien est exposé sont disponibles sur le site Géorisques.

DPE & GES

Diagnostic de performance énergétique
Diagnostics DPE en cours de réalisation
Indice d'émission de gaz à effet de serre
Diagnostics GES en cours de réalisation

Vous cherchez des biens en Location dans le secteur Haguenau

En soumettant ce formulaire, j'accepte que les informations saisies soient exploitées dans le cadre de ma demande et de la relation commerciale qui peut en découler.
Nous utilisons des cookies et autres traceurs pour analyser et améliorer votre expérience utilisateur, réaliser des statistiques de mesure d’audience et vous permettre de lire des vidéos. Vous pouvez à tout moment modifier vos paramètres de cookies en cliquant sur le bouton « Personnaliser ». En cliquant sur le bouton « Tout accepter », vous acceptez le dépôt de l’ensemble des cookies. Dans le cas où vous cliquez sur « Personnaliser » et refusez les cookies proposés, seuls les cookies techniques nécessaires au bon fonctionnement du site seront déposés. Pour plus d’informations, vous pouvez consulter la page « Charte de données personnelles ».