contacter
  • Locaux d'activité & Entrepôts - Location - SORGUES - 84700 - 144.76-144.76 - 7270924
  • Locaux d'activité & Entrepôts - Location - SORGUES - 84700 - 144.76-144.76 - 7270925
  • Locaux d'activité & Entrepôts - Location - SORGUES - 84700 - 144.76-144.76 - 7270926
  • Locaux d'activité & Entrepôts - Location - SORGUES - 84700 - 144.76-144.76 - 7270924
  • Locaux d'activité & Entrepôts - Location - SORGUES - 84700 - 144.76-144.76 - 7270925
  • Locaux d'activité & Entrepôts - Location - SORGUES - 84700 - 144.76-144.76 - 7270926

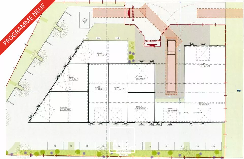
Locaux d'activité neufs à louer - Idéal artisans, PME - Avignon Nord

Référence : 84.020776

Description

Arthur Loyd Avignon vous propose à la location un local d'activité de 144,76 m² dans un programme neuf composé de 10 cellules d'activité, implanté sur un site fonctionnel bénéficiant d'un accès rapide à la RD907 et aux grands axes autoroutiers.

Un emplacement adapté aux besoins des :

  • Artisans (production, second oeuvre, maintenance)

  • PME industrielles ou de logistique

  • Entreprises de stockage ou de distribution

  • Activités techniques ou mixtes (hors ERP sauf dérogation)

    Caractéristiques :

  • Cellules 144,76 m² environ - regroupables

  • Surface totale disponible : 1 063 m²

  • Livraison brute, avec porte sectionnelle et accès de plain-pied

  • Voirie poids lourds, aire de manoeuvre, parkings mutualisés

  • Aménagements possibles selon cahier des charges, pouvant influencer le loyer

    Situation géographique :
    À proximité de l'A7 (Avignon Nord), de la rocade et des zones économiques d'Entraigues et Vedène. Visibilité directe depuis un axe passant.

    Loyer : à partir de 10,50 euros HT/m²/mois, selon la surface, la configuration et les prestations souhaitées.
    Bail commercial 3/6/9 ans - Disponibilité : nous consulter.

    Demander plus d'informations au conseiller
  • Localisation dans le secteur Avignon

    Programmer une visite dès maintenant ?

    Contactez-moi afin d'obtenir les informations concernant ce bien et/ou programmer une visite

    Recherche plus d'offres dans ce secteur ?

    Les informations sur les risques auxquels ce bien est exposé sont disponibles sur le site Géorisques.

    Tableau des surfaces

    Étage Type Loyer
    RDC LOCAL D'ACTIVITE 126,00 € m²
    Surface totale : 145 m²

    Tableau des surfaces

    1 lot de 144.76m² disponibles

    Prestations

    • Accès gros porteur

    • Accès plain-pied

    • Couverture bac acier

    • Façade bardage double peau

    • Nbre Parkings extérieurs :22

    • Porte sectionnelle

    • Terrain bitumé

    • Terrain clos

    Vous avez des questions sur ce bien ?

    DPE & GES

    Diagnostic de performance énergétique
    Diagnostics DPE en cours de réalisation
    Indice d'émission de gaz à effet de serre
    Diagnostics GES en cours de réalisation

    Vous cherchez des biens en Location dans le secteur Avignon

    En soumettant ce formulaire, j'accepte que les informations saisies soient exploitées dans le cadre de ma demande et de la relation commerciale qui peut en découler.
    Nous utilisons des cookies et autres traceurs pour analyser et améliorer votre expérience utilisateur, réaliser des statistiques de mesure d’audience et vous permettre de lire des vidéos. Vous pouvez à tout moment modifier vos paramètres de cookies en cliquant sur le bouton « Personnaliser ». En cliquant sur le bouton « Tout accepter », vous acceptez le dépôt de l’ensemble des cookies. Dans le cas où vous cliquez sur « Personnaliser » et refusez les cookies proposés, seuls les cookies techniques nécessaires au bon fonctionnement du site seront déposés. Pour plus d’informations, vous pouvez consulter la page « Charte de données personnelles ».